2021.02.25(木) |
[軽井沢プリンスホテル ウエスト] 進化するリゾートホテル 新たな働き方と旅のスタイルを提案、新客室棟70室と温泉棟を 4月27日に開業、予約開始日は2月26日より(プリンスホテル) |
---|
軽井沢プリンスホテル ウエスト(北佐久郡軽井沢町軽井沢、中野忠昭総支配人)は、高まるワーケーションの需要等、新しいニーズに対応するため、70室のテラス付きツインルームを備える客室棟と露天風呂付き温泉棟を新設、ロビー周辺のリニューアルを実施し、4月27日(火)に開業する。
軽井沢プリンスホテルでは、2020年より大規模なバリューアップを実施し、その第一弾として世界的MICEリゾートの確立を目的としたMICE施設とレストラン2店舗の新設、また一部既存客室のリニューアルを実施した。今回はそれに続く第二弾のバリューアップとなる。
新客室棟「PREMIUM WING」ツインルーム イメージ
軽井沢プリンスホテルでは、この度の開業によりポストコロナ時代に安全•安心を確保しながら楽しむ個人旅行や軽井沢を拠点としたリゾートワーケーション等、進化するリゾートホテルとして新たな働き方と旅のスタイルを提案していく。
温泉棟「MOMIJI HOT-SPRING」外観イメージ
■軽井沢リゾートワーケーションの拠点となる新客室棟「PREMIUM WING」と温泉棟「MOMIJI HOT-SPRING」
新たな客室では窓辺やテラスでの仕事環境を整え、自然とともに過ごすワーケーションスタイルを実現させる。全70室のうち16室は2部屋をつなげて最大8名さままでの滞在が可能になり、3世代での滞在の他、仕事場とリビング•ベッドルームとの機能を分けることで仕事中や滞在中の快適さを向上させる。また、新温泉棟「MOMIJI HOT-SPRING」は滞在中、何度でも利用可能だ。
お客さまからのお問合せ先は 電話0267-42-1111(軽井沢プリンスホテル ウエスト予約係)。2月26日(金)12:00NOONより予約開始する。
<施設概要>
軽井沢プリンスホテルでは、2020年より大規模なバリューアップを実施し、その第一弾として世界的MICEリゾートの確立を目的としたMICE施設とレストラン2店舗の新設、また一部既存客室のリニューアルを実施した。今回はそれに続く第二弾のバリューアップとなる。

新客室棟「PREMIUM WING」ツインルーム イメージ
軽井沢プリンスホテルでは、この度の開業によりポストコロナ時代に安全•安心を確保しながら楽しむ個人旅行や軽井沢を拠点としたリゾートワーケーション等、進化するリゾートホテルとして新たな働き方と旅のスタイルを提案していく。

温泉棟「MOMIJI HOT-SPRING」外観イメージ
■軽井沢リゾートワーケーションの拠点となる新客室棟「PREMIUM WING」と温泉棟「MOMIJI HOT-SPRING」
新たな客室では窓辺やテラスでの仕事環境を整え、自然とともに過ごすワーケーションスタイルを実現させる。全70室のうち16室は2部屋をつなげて最大8名さままでの滞在が可能になり、3世代での滞在の他、仕事場とリビング•ベッドルームとの機能を分けることで仕事中や滞在中の快適さを向上させる。また、新温泉棟「MOMIJI HOT-SPRING」は滞在中、何度でも利用可能だ。
お客さまからのお問合せ先は 電話0267-42-1111(軽井沢プリンスホテル ウエスト予約係)。2月26日(金)12:00NOONより予約開始する。
<施設概要>
- 新客室棟「PREMIUM WING」(新設) 既存の客室棟(全173室)から南側へつながる全70室の客室棟を新設。

新客室棟「PREMIUM WING」ツインルーム イメージ
【特長】
●充実したワーケーション設備
- ・デスク周辺設備としてデスクライトと複数の電源コンセント、USBポートを設置
- ・テラス専用テーブル&チェア、防水電源コンセントを完備
- ・全客室に窓辺とテラス、気分に応じて選べる2ヵ所のワークスペースを用意
●汎用性が高い客室
・1室あたり39.0㎡のゆったりした客室
・1室最大4名さままでレイアウトの変更が可能
- ・一部客室は隣り合う2部屋をつなげるコネクティング利用が可能(最大8名さま)

ツイン利用利用レイアウト1名でのワーケーションや 2名さまでのご旅行に

フォース利用レイアウト ご家族やグループ旅行、法人の研修旅行等でのご利用に

コネクティング利用レイアウト 仕事用と滞在部屋として利用 ご家族とのワーケーション滞在に

2. 温泉棟「MOMIJI HOT-SPRING」(新設)新温泉施設
新客室棟「PREMIUM WING」からつながる宿泊者専用の温泉棟を新設し開業する。

新温泉施設「MOMIJI HOT-SPRING」内湯イメージ
【特長】
●自然を望む露天風呂と温泉
・秋には鮮やかな紅葉が映える「もみじ山」を望む露天風呂
・四季の移ろいを感じる大きなガラス窓の内風呂
・湯上がりの休憩スペースとしてラウンジやテラスを併設
●長期のワーケーション滞在にも最適
・フィットネスルーム完備(男女共有)
・滞在中は何度でも利用可能
<新温泉施設「MOMIJI HOT-SPRING」施設概要>
営業時間:6:00A.M.~11:00P.M. (最終受付10:30P.M.)
温泉スペース:内風呂(男女各1)/露天風呂(男女各1)/ロッカー(男女各122)/パウダールーム(男女各10)/洗い場(男女各20)/下駄箱(男女各120)
共有スペース:温泉フロント/ラウンジ/フィットネスルーム
<温泉入浴料金(1名さま)> ※別途、1泊につき入湯税¥150を頂戴します。

※別途、1泊につき入湯税¥150を頂戴します。
※軽井沢プリンスホテル イースト(本館)宿泊者は「フォレスト ホット スプリング」をご利用ください。
3. フロント、ロビー、ロータリー、既存客室(リニューアル)
軽井沢プリンスホテル ウエスト南側の玄関ロータリーおよびフロント•メインロビーを新客室棟•新温泉棟新設と同時にリニューアルする。また、既存客室(A-SIDE101室)は4月中旬にリニューアルする。
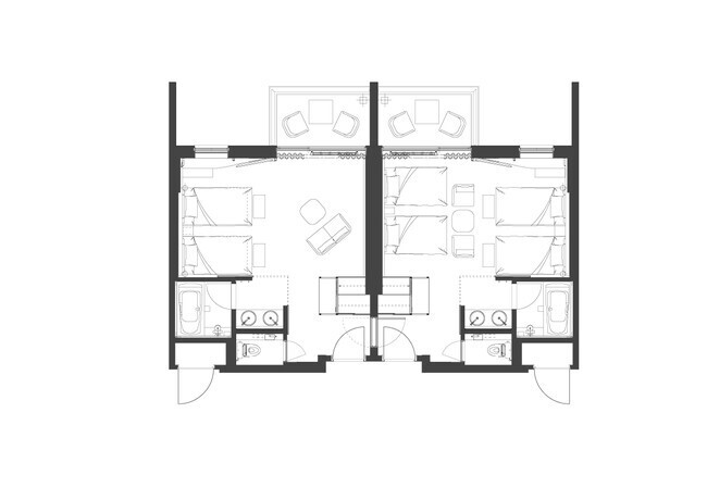
<軽井沢プリンスホテル ウエスト 平面完成図>

プリンスグランドリゾート軽井沢
ホテルの他、四季を通してさまざまな年代のお客さまが楽しめるアクティビティーが充実している。滞在しながら働き、旅の思い出作りを後押しする新たなワークスタイルを提案していく。

プリンスグランドリゾート軽井沢のこれまでのバリューアップ
2012年
軽井沢プリンスホテル ウエスト宴会場 リニューアル
ザ・プリンス 軽井沢 全客室、ラウンジリニューアル
2014年
ザ・プリンス ヴィラ軽井沢 開業
軽井沢72ゴルフ 東コース クラブハウスオープン
軽井沢・プリンスショッピングプラザ 第7期増床
2015年
軽井沢プリンスホテル イーストコテージ27棟 リニューアル
軽井沢プリンスホテル ウエスト「宴会場千曲」リニューアル
2016年
軽井沢 浅間プリンスホテル3階客室リニューアル
軽井沢プリンスホテル ウエスト 会議室「あかしや」「石楠花」「白樺」リニューアル
2017年
軽井沢プリンスホテル イースト 本館全客室・ロビー・レストランリニューアル
2019年
軽井沢プリンスホテル ウエスト 「メインバンケットホール 長野」「国際会議場 浅間」リニューアル
軽井沢 浅間プリンスホテル 「ダイニング ブルーム」リニューアルオープン
軽井沢プリンスホテル ウエスト 「日本料理 からまつ」リニューアルオープン
プリンス バケーション クラブ ヴィラ軽井沢浅間 開業
プリンス バケーション クラブ 軽井沢浅間 開業
軽井沢 浅間プリンスホテル 温泉棟「Breeze in Plateau(ブリーズ イン プラトー)」開業
軽井沢プリンスホテルスキー場「アクティビティホール」オープン
2020年
軽井沢プリンスホテル ウエスト 第一弾バリューアップ
7月
軽井沢プリンスホテル ウエスト B-SIDE全客室(72室)リニューアル
軽井沢プリンスホテル ウエスト バンケットロビー、「バンケットテラス KURUMI」「ALL DAY DINING LOUNGE/BAR Primrose(プリムローズ)」「中国料理 桃李」開業
2021年
軽井沢プリンスホテル ウエスト 第二弾バリューアップ
4月中旬
軽井沢プリンスホテル ウエスト A-SIDE全客室(101室)リニューアル
4月27日
軽井沢プリンスホテル ウエスト 新客室棟「PREMIUM WING」70室 開業
新温泉棟「MOMIJI HOT-SPRING」開業
フロント・ロビー・ロータリー リニューアル